Описание
Бункер с электромеханическим дозатором и горизонтальной/наклонной решеткой:
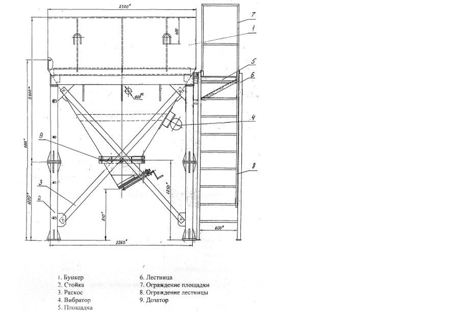
Бункер накопитель для сыпучих материалов представляет собой сварную конструкцию коробчатого типа.
В верхней части бункера накопителя закреплена решетка/наклонная решетка с вибратором. Второй вибратор установлен на боковой стенке.
Для регулировки объема подаваемой насыпной массы на ленту транспортера, в нижней части бункера установлен дозатор с заслонкой или электромеханический дозатор.
Габаритные размеры, мм: 3300х2500х3050









В наличии
Самовывоз или доставка по Москве 2-4 дня
Официальная гарантия 12 месяцев