Описание
Грохот инерционный – это установка, задачей которой является разделение на фракции щебня, гравия, песка, шлака и других материалов, применяемых в строительном и дорожном деле.
Сита комплектуются по заявке заказчика. Размеры ячеек сит от 4х4 до 70х70 мм.
Грохот может быть отдельным видом технологического оборудования или применяться в комплексе с другим дробильно-сортировочным оборудованием: конвейерами, питателем, дробилками и т.п.
ГРОХОТ ГИЛ-42 ПРОИЗВОДИТЕЛЬНОСТЬЮ от 50 до 150 м3/ч
Установка может применяться и в других отраслях промышленности, где необходима сортировка кусковых и сыпучих материалов. Грохот инерционный может комплектоваться системой орошения и водозабора. В таком случае одновременно с сортировкой может быть произведена промывка материалов, загрязненных глиной, пылью и другими примесями.
ПРЕИМУЩЕСТВА:
● высокая интенсивность вибрации и эффективность просеивания и сортировки материала
● простая конструкция
● низкие расходы на эксплуатацию
● высокая интенсивность вибрации и эффективность просеивания и сортировки материала
● простая конструкция
● низкие расходы на эксплуатацию
Производительность (пропускная способность) установки зависит от многих факторов, главным образом от размеров ячеек сит, от степени равномерности загрузки, а также от гранулометрического состава сортируемого материала (под гранулометрическим составом понимается относительное содержание в нем (по весу) частиц различной величины. От него зависят такие важные характеристики свойств и состояния, как пластичность, пористость, сопротивление сдвигу, сжимаемость, усадка и другое).
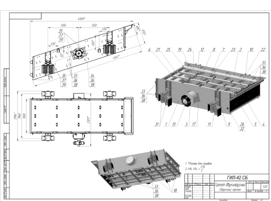
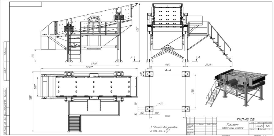
КОМПЛЕКТ ПОСТАВКИ
1.Рама – 1шт.
2.Раскос в сборе – 2шт.
3.Стойка в сборе – 1шт.
4.Грохот в сборе – 1шт.
5.Распределитель в сборе – 1шт.
6.Кронштейн для крепления распределителя – 2шт.
7.Приёмник в сборе – 1шт.
8.Кронштейн для крепления приемника – 4шт
9.Лоток в сборе – 1шт.
10.Лестница в сборе – 1шт.
11.Поручень – 1шт.
12.Площадка в сборе – 5шт.
13.Пружина – 8шт.
14.Стяжки – 4шт.
15.Ограждение в сборе – 5шт.
16.Лоток – 1шт.
17.Кожух в сборе для электродвигателя – 1шт
18.Кронштейн для крепления электродвигателя – 2шт.
19.Электродвигатель 4А132М4УЗ – 1шт.
20.Ремень – 2шт
2.Раскос в сборе – 2шт.
3.Стойка в сборе – 1шт.
4.Грохот в сборе – 1шт.
5.Распределитель в сборе – 1шт.
6.Кронштейн для крепления распределителя – 2шт.
7.Приёмник в сборе – 1шт.
8.Кронштейн для крепления приемника – 4шт
9.Лоток в сборе – 1шт.
10.Лестница в сборе – 1шт.
11.Поручень – 1шт.
12.Площадка в сборе – 5шт.
13.Пружина – 8шт.
14.Стяжки – 4шт.
15.Ограждение в сборе – 5шт.
16.Лоток – 1шт.
17.Кожух в сборе для электродвигателя – 1шт
18.Кронштейн для крепления электродвигателя – 2шт.
19.Электродвигатель 4А132М4УЗ – 1шт.
20.Ремень – 2шт










В наличии
Самовывоз или доставка по Москве 2-4 дня
Официальная гарантия 12 месяцев